SCANDINAVIAN

  • June 22, 2023
The Sage Green Kitchen Area
PROJECT INFORMATION PROJECT NAME: The Sage Green Kitchen ARCHITECT: ArchirenderX CONCEPT: Retro with Modern LOCATION: California, USA DATE: 21/03/2019 To 15/12/2022 Share:   Vibrant Fusion: The Sage Green Kitchen     Introduction   The Vibrant Fusion project is a high-end residential kitchen design that boldly integrates color and texture into…
Read More
  • June 22, 2023
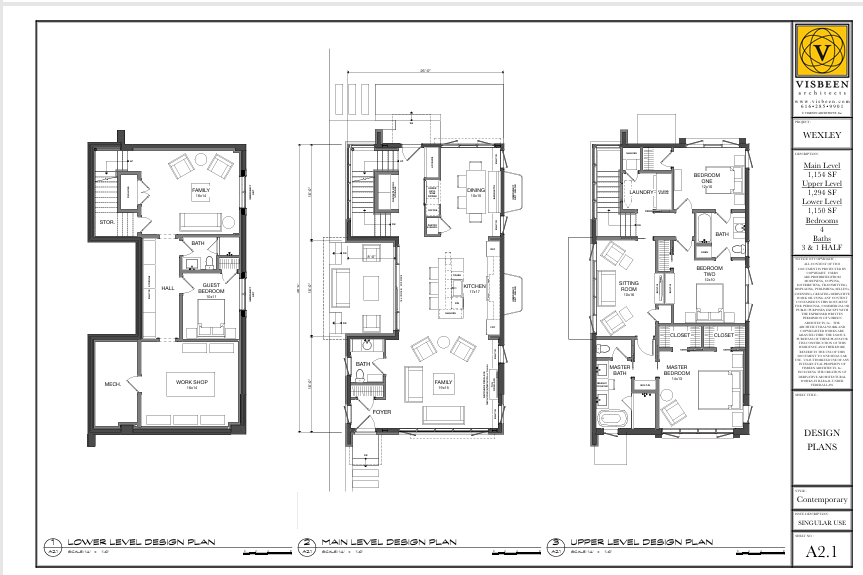
The WEXLEY Residence: Dynamic Urban Volume
Dynamic Urban Volume Download PROJECT INFORMATION PROJECT NAME: Dynamic Urban Volume ARCHITECT: gtrd6127 DATE: 21/03/2019 To 15/12/2022 Share: The WEXLEY Residence: Dynamic Urban Volume This three-story contemporary home is engineered for the modern family seeking expansive, flexible space without compromising architectural style. It features a bold, geometric façade and a…
Read More
  • June 22, 2023
The Neoclassical Hearth
PROJECT INFORMATION PROJECT NAME: The Neoclassical Hearth ARCHITECT: ArchirenderX DATE: 21/03/2019 To 15/12/2022 Share: Archival Warmth: The Neoclassical Hearth     Introduction   The Archival Warmth project focuses on a residential interior feature wall, transforming a simple architectural niche into a sophisticated, neoclassical focal point. The core concept is “Modern…
Read More
  • June 22, 2023
The Terrazzo Spa Retreat
PROJECT INFORMATION PROJECT NAME: The Terrazzo Spa Retreat ARCHITECT: ArchirenderX DATE: 21/03/2019 To 15/12/2022 Share:   Wellness Archipelago: The Terrazzo Spa Retreat     Introduction   The Wellness Archipelago project is a large-scale commercial interior design for a modern spa or beauty clinic, focusing on creating a luxurious, serene, and…
Read More

Archives

    Categories

    • No categories

    We are a dedicated architectural design studio delivering high-quality 2D & 3D floor plans for residential, commercial, and industrial projects. Using industry-standard tools like AutoCAD and SketchUp, we create accurate, visually stunning designs that help you visualize your project before construction begins. Our work blends creativity, precision, and technical expertise to make your vision come to life.

    Contact Info

    House no 862, block b3 , street Haider town, lahore cant, lahore

    UP